PUZZLE
HOUSE
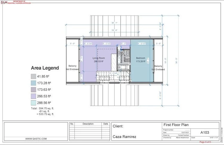
ADU
Discover our innovative 1200 sq. ft. ADU concept—an adaptable design that offers the flexibility of a single expansive home or two distinct, two-story units. Known as the Puzzle House, this architectural marvel is engineered to accommodate your lifestyle needs by functioning as one seamless residence or as two separate levels for dual living arrangements. Fully permitted by Los Angeles County planning, this design stands out with its modern aesthetic and strategic orientation.












Positioned diagonally along the Los Angeles River, each structure is aligned to capture panoramic horizon views, maximizing natural light and the breathtaking vistas of the river. The vertical alignment of the homes not only enhances the scenic outlook but also provides versatility in usage, whether you're looking for a multi-generational family home, a rental investment, or a unique space that grows with your needs.
Spanning between 1200 to 1400 sq. ft., these thoughtfully designed units combine functionality with contemporary style. Emphasizing efficient space utilization, each residence is crafted to deliver comfort, privacy, and elegance. Embrace the future of urban living with a design that merges flexibility, style, and stunning Los Angeles views into one outstanding architectural solution.








